吸附罐应符合以下要求:
1.采用颗粒状活性炭,并且有吸附性能好、机械强度高、化学稳定性好、再生能力强等特性;
2.活性炭粒径0.9~1.6mm范围,比表面积=900 rm2/g;
3.吸附层的有效厚度不小于臭氧吸附罐的滤速范围应再30~35m/h;
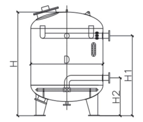
LSXG系列臭氧活性炭吸附罐采用具有高强防晚性能,抗臭氧、氯离子双重腐蚀的316 L不锈钢材料制作,设计压力0.6Mpa.采用缝隙式集水滤棒,使布水面积更大,水流更均匀.活性炭良好的物化指标使得吸附过滤后的水质更稳定.顶部设有自动排气阀,将反应剩余臭氧送至残余臭氧消除器还原成O后安全排入外界大气.罐体设有人孔,方便检修.


